Inicio
Diseño
Arquitectura
Fotografía
Otros
Contacto
Inicio
Diseño
Arquitectura
Fotografía
Otros
Contacto
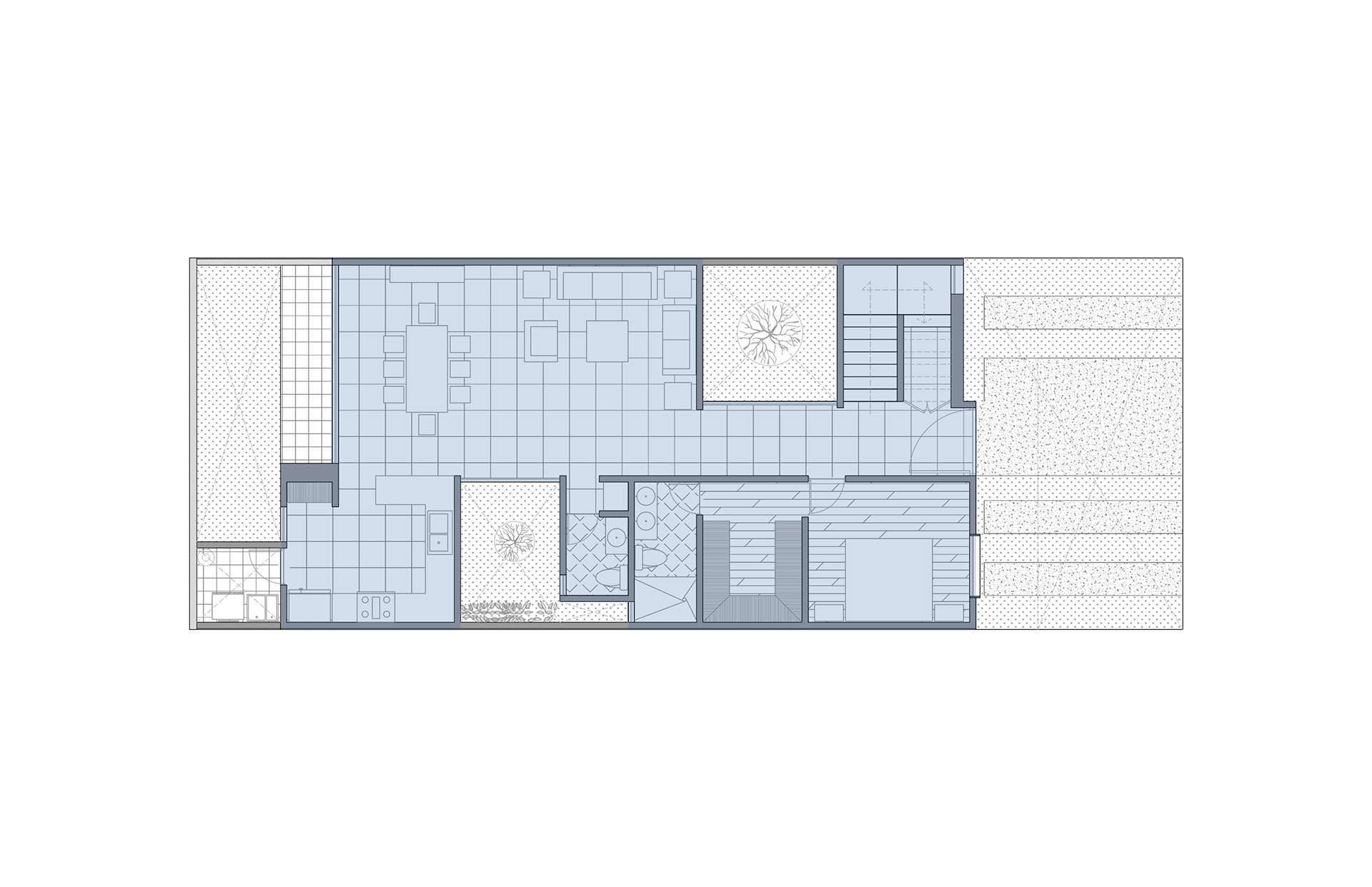
Casa C012
↑
Volver arriba