Inicio
Diseño
Arquitectura
Fotografía
Otros
Contacto
Inicio
Diseño
Arquitectura
Fotografía
Otros
Contacto
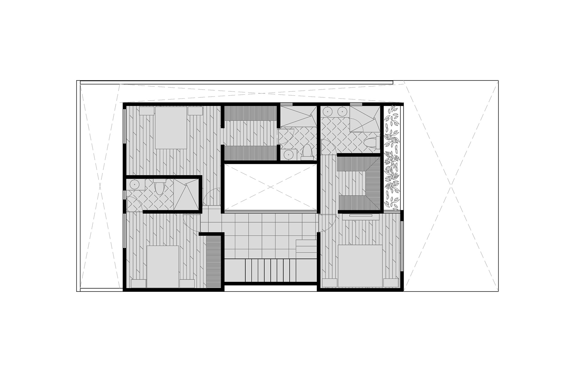
Casa en La Cartuja
↑
Volver arriba