Inicio
Diseño
Arquitectura
Fotografía
Otros
Contacto
Inicio
Diseño
Arquitectura
Fotografía
Otros
Contacto
C L T C L T

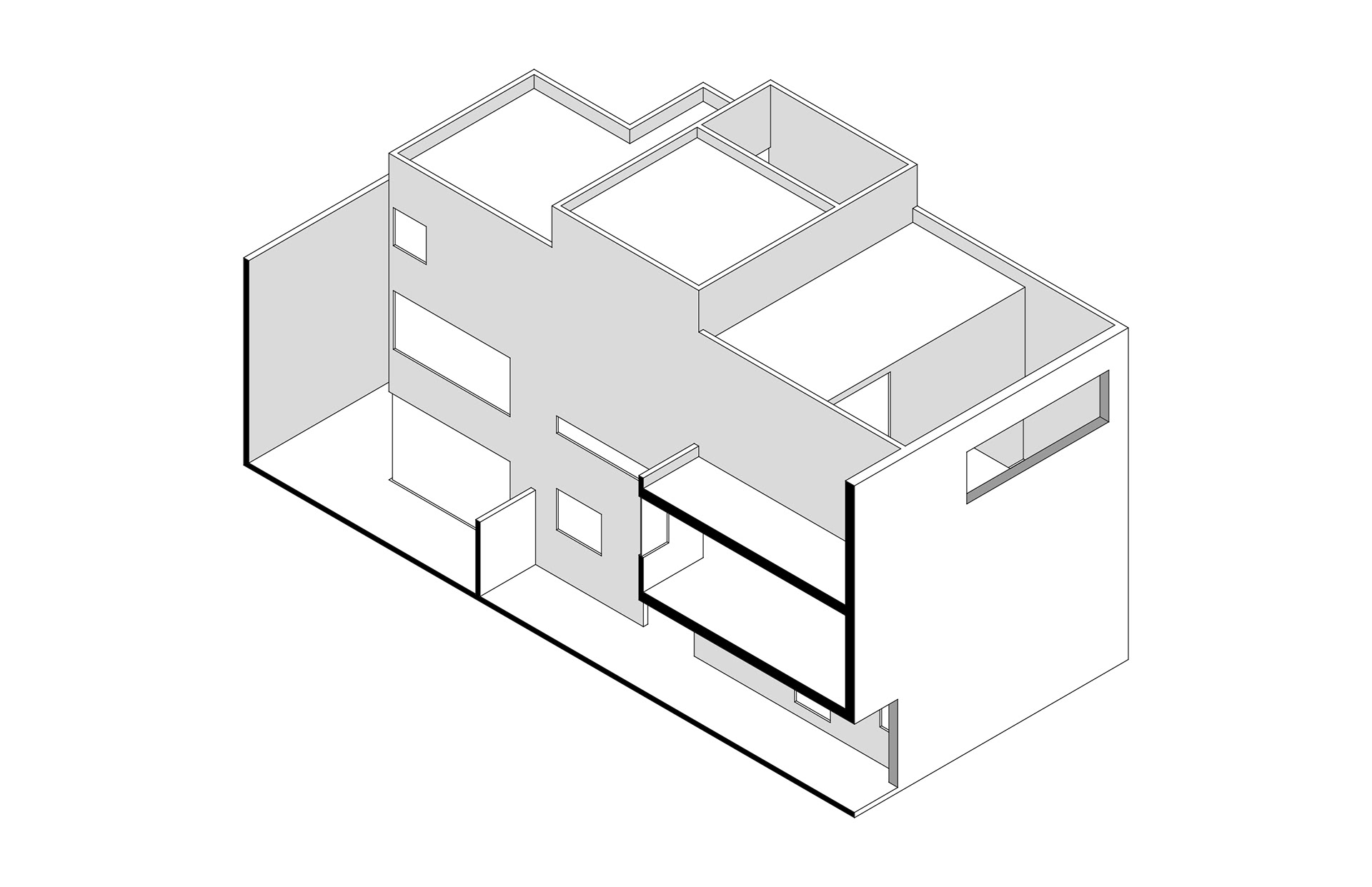
Casa P017

↑Volver arriba